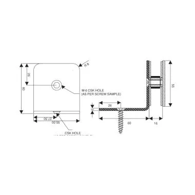
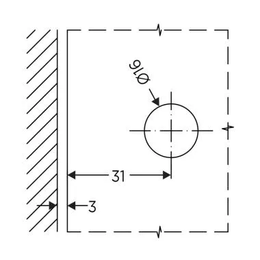
Plus Series Glass Connectors

Sign Up for Offers
WhatsApp